PSRH–@¥ƒ}ƒOƒlƒ‰ƒCƒ“ HŽ–Ž–—á  
     
HŽ––¼ ƒ}ƒ“ƒz[ƒ‹•â‹­HŽ–
HŽ–êŠ ˆ¤’mŒ§–¼ŒÃ‰®Žs’†‹æŠÛ‚Ì“à
”­’ŽÒ ’†•”“d—Í(Š”)
     
H–@‹K–Í ‚o‚r‚qH–@@@35m2
—p“r¥–Ú“I ‚s|‚Q‚T‰×d‘Ήž‚Ì‚½‚ß
Ž{HŽžŠú H14.2`H14.3
Žd@—l PSRH–@
@D6-50~D6-100it=18.5mmjF’¸”ÅA’ê”Å
@D6-100~D6-100it=18.5mmjF‘¤•Ç
”õ@l ƒ}ƒ“ƒz[ƒ‹“àA°”ÅA‘¤•ÇA’ê”Å•”•â‹­
ƒnƒ“ƒ`‘Œúi100~100A200~200j
’f–ÊŒ‡‘¹•”‚Ì•âC
     
         
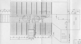
i}¥ŽÊ^“™‚É‚æ‚éà–¾j      
  è—pó‹µ   •â‹­‰ÓŠ•½–Ê}  
è—pó‹µ   •â‹­‰ÓŠ•½–Ê}  
     
‘Œúó‹µ   •â‹­Š®—¹
‘Œúó‹µ   •â‹­Š®—¹  
         
“¿‘qŒšÝ@Дޮ‰ïŽÐ